- Accueil
- Le village
- Vie municipale
- Un projet de développement pour Grisy-les-Plâtres : le hameau du moulin.
Un projet de développement pour Grisy-les-Plâtres : le hameau du moulin.
Onglets principaux
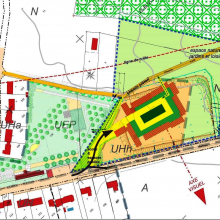
Suite à la modification du plan local d’urbanisme de 2020 (PLU), pour mémoire engagée pour conserver la maîtrise communale d’occupation du sol et générer des recettes financières communales, la municipalité lance le projet de réhabilitation du terrain de football désaffecté et propriété de la commune, sis à la sortie du village en direction d’Epiais – Rhus, en bordure de la RD64.
La demande de permis d’aménagement et l’étude de viabilisation sont en cours d’élaboration.
LE CONTEXTE
Sur le terrain de football désaffecté, désormais inscrit au PLU en zone d’habitat, le projet consiste à créer sur la surface constructible de quelque 0,87ha, un nouveau petit hameau grisylien, en forme de ferme, constitué d’habitations insérées à l’entrée du village, sous la forme de maisons individuelles et d’un équipement communal d’intérêt collectif, avec suivant les besoins deux ou trois logements.
LES OBJECTIFS
Les orientations d’aménagement
- Constituer un petit hameau viabilisé pour un créer un habitat en entrée de village dit « le Hameau du Moulin »,
- Accueillir douze logements sous la forme de maisons individuelles ainsi qu'un équipement communal d'intérêt collectif potentiellement dédié à une maison de santé communale complétée ou remplacée suivant les besoins par deux ou trois logements.
- Insérer l’accès à l’opération par le chemin de desserte de l’ancien terrain de football depuis la route départementale 64,
- Privilégier un aménagement sous forme d’opération d’aménagement d’ensemble,
- Insérer le hameau dans l’échelle du paysage : créer un ensemble bâti unitaire implanté en fonction des grandes orientations structurantes du paysage et des reliefs, à l’instar des anciens habitats du Vexin. Implanter les constructions groupées et alignées formant une « cour de ferme », sans clôture sur l’espace central,
- Limiter les hauteurs bâties, en continuité des hauteurs des constructions environnantes,
- Etablir une continuité d’aménagement avec :
- l’espace de sport et loisirs,
- des espaces publics ou communs de liaison,
- des éléments plantés créant des effets de continuité d’un espace à l’autre,
- Instaurer des continuités paysagères entre les espaces naturels et boisés existants et le hameau par la végétation à installer dans les jardins, les haies, l’espace au cœur du hameau et des vergers,
- Insérer un accès piéton passant dans l’espace de loisirs pour rejoindre le centre village,
- Préserver les chemins piétons autour du site et vers les espaces boisés et agricoles,
- Mettre en place des modes de gestion alternative des eaux pluviales (noues paysagères d’infiltration, écoulement des eaux vers les zones plantées,…).Les orientations des différents financements (Chiffrages en cours)
Les recettes commerciales
Elles seront le résultat de la vente à des particuliers de douze terrains viabilisés dont les prix de cession seront fixés en Conseil municipal suite aux conseils de professionnels de la vente immobilière et l’appui des recommandations du service public des domaines contactés par la mairie. Ces recettes permettront de financer la viabilisation du « Hameau du moulin » la création de la maison de santé et les investissements communaux prévus au plan d’actions municipales 2020 - 2026
- Les recettes fiscales : elles seront après chaque vente de terrain liées à la taxe foncière communale sur le bâti. Ces recettes durables s’ajouteront à celles des recettes actuelles et limitées du budget communal.
- Les subventions : elles seront sollicitées auprès de l’Etat, de la région Ile de France, du Conseil départemental du Val-d’Oise, des syndicats concessionnaires, du Parc naturel régional du Vexin français et de l’agence de l’eau.
Les dépenses
Elles seront liées aux études faites sur le terrain de football désaffecte et à la viabilisation communale du Hameau du moulin. (Travaux généraux et préparatoires, assainissements, tranchées et équipements techniques, voiries, équipements publics, aménagements paysagers).
Pour assumer ces dépenses et la trésorerie budgétaire indispensable, un prêt relais sera nécessaire et remboursable au gré des ventes des terrains qui par ailleurs seront soumises à la taxe sur la valeur ajoutée sur la marge bénéficiaire obtenue par chacun des terrains vendus.